- 1/7
-
Project
Caspian Seaside House -
Location
Baku – -
Date
2025 -
Client
Private
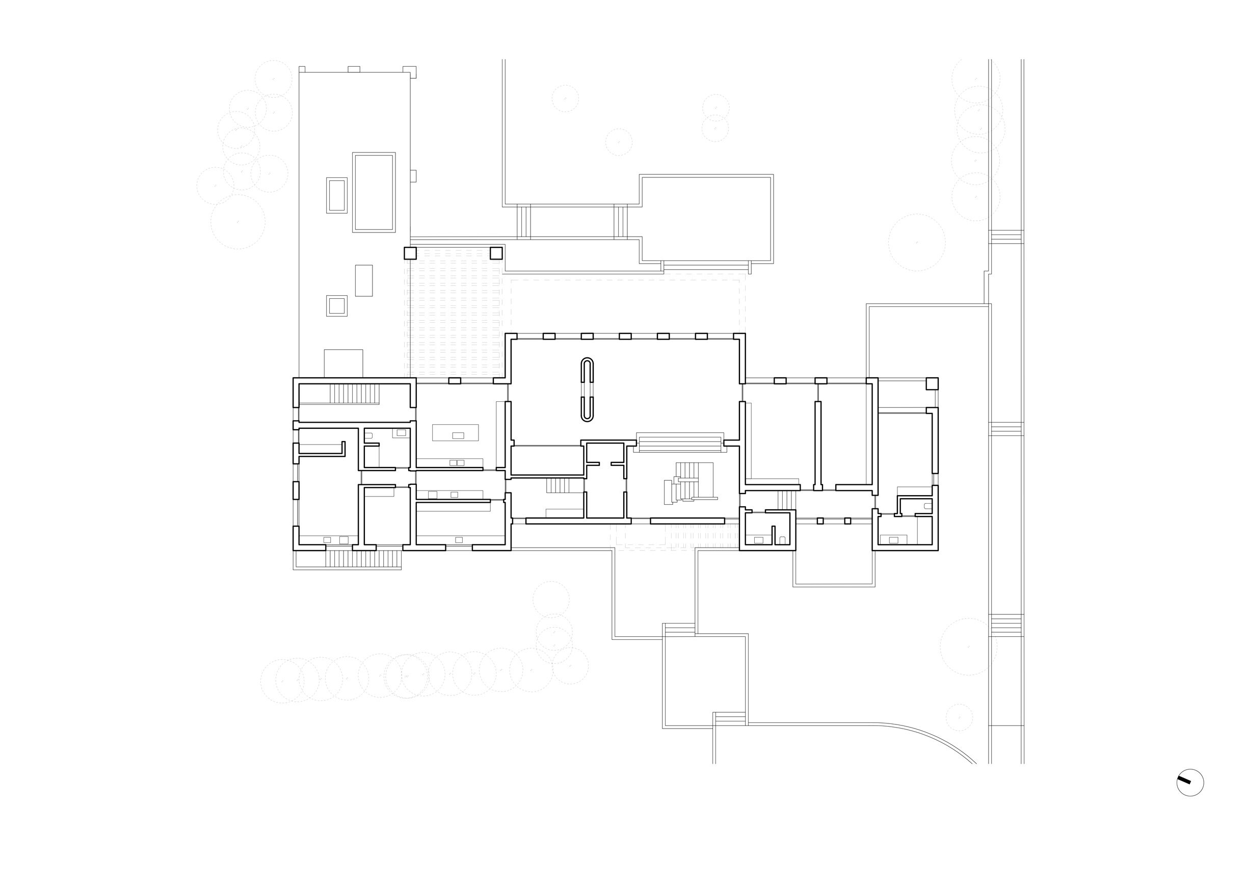
A rectangular site, perpendicular to the shore line, facing East with a single entrance from the West side were sufficient constraints to guide the overall footprint of the project. Making use of the existing slopes to minimize earthwork, the house is designed so as to offer maximum views out towards the East and minimal openings facing West, mitigating the effects of the afternoon sun.
A tree lined plot line on the South side further provided natural shading and invited us to make the most out of the narrowness of the site, while protecting the views out from an existing old pathway down to the sea.
Our design intent was that of reflecting permanence, using mass not just as a thermal strategy but also as an extension of the millenia old madrasa designs that were built along the Silk Road, allowing merchants & travelers to rest, protected from the heat and sun.