- 1/7
-
Project
Seaside House -
Location
Cap Ferret – France -
Date
2025 -
Status
Completed -
Client
Private -
Photography
Simone Bossi
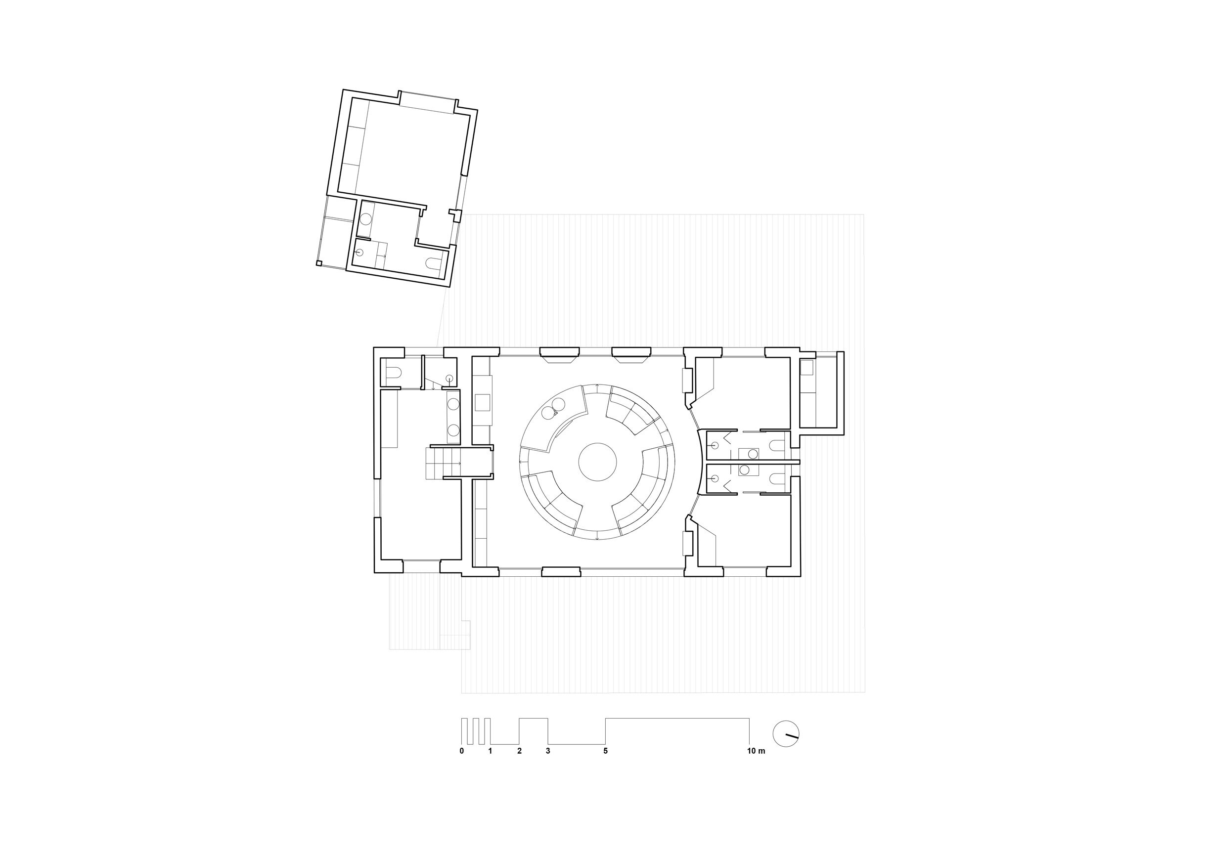
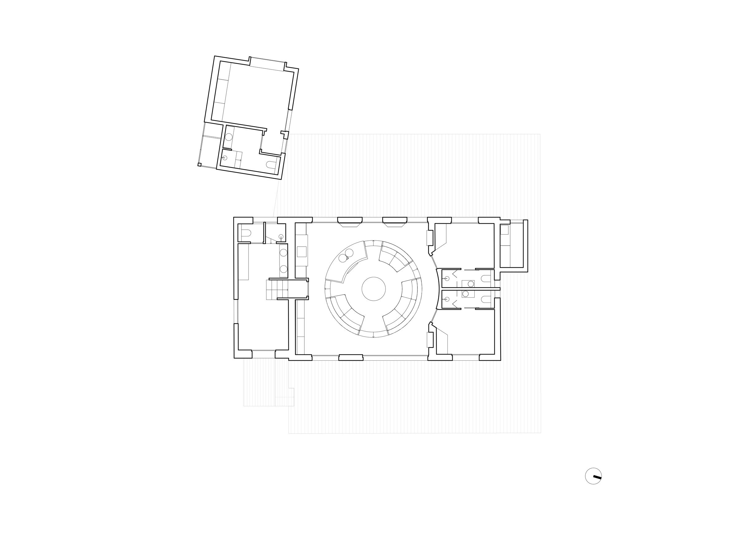
Nestled among a grove of towering maritime pines, this 1930s seaside house has been given a new lease on life through a complete renovation that redefines its connection to the surrounding landscape.
Located at the very tip of the Cap Ferret peninsula, it sits within equal reach of the ocean and the sound, offering a rare and captivating sense of place. The new layout is designed around fluidity, creating a seamless transition between interior and exterior spaces. Multiple seating areas invite different ways of inhabiting the house throughout the day and with changing weather. At its heart, the living room acts as a central pivot, connecting all rooms while maintaining a constant visual and sensory link to the landscape—and to the distant murmur of the sea.